Freitag: 8 - 14 Uhr
04103 - 903 870
info@business-trading.com
Zahlen Sie nach Erhalt unseres schriftlichen Rechnungsdokumentes. Eine Lieferung auf Rechnung bieten wir nur Firmen (GmbH, GmbH & Co. KG, oHG, AG oder KG), Behörden, Schulen, Konzernen und Großkunden an.
Lieferzeit: 1 - 5 Werktage
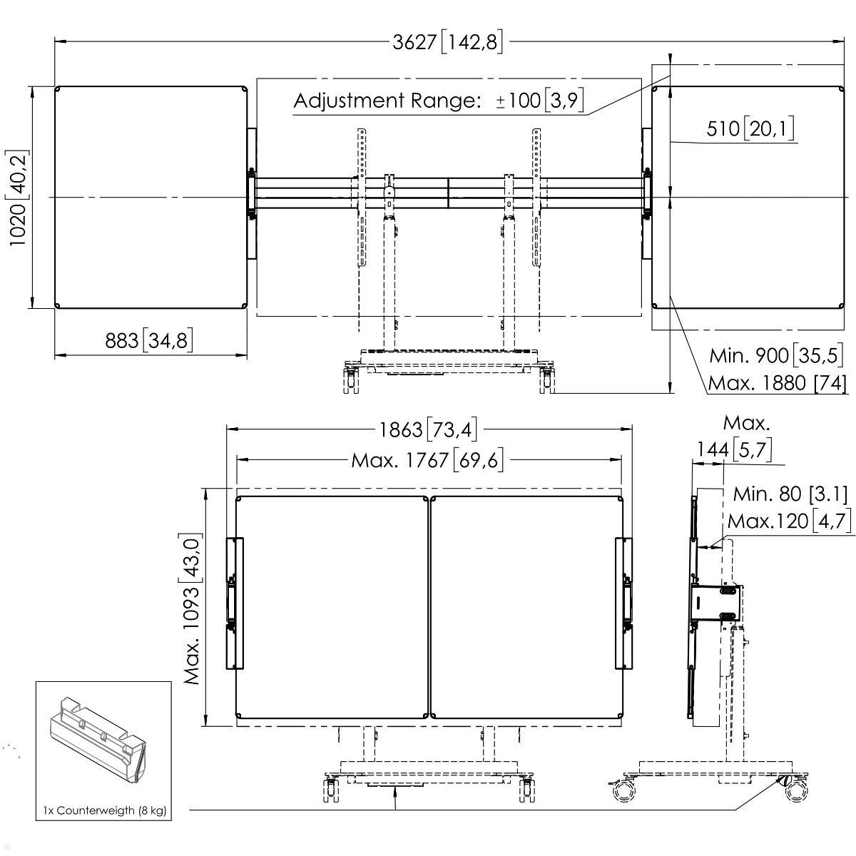
Whiteboard für elektrischen TV Lift
Das elektrisch höhenverstellbare Display-Liftsystem Vogels RISE ist speziell für Meetingräume, Schulen, Universitäten und ähnliche Einsatzgebiete konstruiert. Großformatige und schwere Displays können einfach und sicher befestigt und per Schalter hoch- und heruntergefahren werden. Eine ideale Ergänzung bspw. für den Unterricht im Klassenraum stellt das Whiteboard Set RISE A227 dar. Die beiden aufklappbaren Whiteboards aus emailliertem Stahl werden links und rechts vom Fernseher / Monitor befestigt und lassen sich in Höhe, Breite und Tiefe jeweils exakt auf die Abmessungen des Bildschirms justieren. Das Set ist kompatibel mit allen Vogels RISE TV Ständern / Trolleys.
Technische Details Vogels RISE A227 Zubehör Whiteboard 75 Zoll
- Set aus 2 Whiteboards (L/R) für Vogel’s RISE TV Ständer / Trolley
- Geeignet für Bildschirmgröße: 75 Zoll
- Verstellbare Scharniere zur exakten Anpassung auf das jeweilige Display
- Neigbar: +/- 4°
- Abmessungen (BxHxT): 3627 x 1020 x 142 mm
- Fläche Whiteboard (BxH): 883 x 1020 mm
- Material: Emaillierter Stahl
- Farbe: Weiß
- Garantie: 5 Jahre
| Produktdatenblatt: | |
|---|---|
| Technische Zeichnung: | |
| Montageanleitung: | |
| customFields.bts_neigung: | +/- 4° |
| Geeignet für: | Vogels RISE 5105, RISE 5108, RISE 5205, RISE 5208, RISE 5305, RISE 5308 |
| customFields.bts_zollgroesze: | 75" |
| customFields.bts_lieferumfang: | 1x Whiteboard-Set | Installationsmaterial |
| customFields.bts_material: | Stahl, emailliert |
| Installationsmaterial enthalten: | + |
| Garantie: | 5 Jahre |
| Beweglichkeit: | Höhenverstellbar, Neigbar |
| Diebstahlsicher: | Nein |
| Farbe: | Weiß |
Download-Bereich - Kataloge, Flyer, Garantiebedingungen, ...
0 von 0 Bewertungen
Durchschnittliche Bewertung von 0 von 5 Sternen
Kunden kauften auch
Durchschnittliche Bewertung von 0 von 5 Sternen
Durchschnittliche Bewertung von 5 von 5 Sternen
Durchschnittliche Bewertung von 0 von 5 Sternen
Durchschnittliche Bewertung von 0 von 5 Sternen
Durchschnittliche Bewertung von 5 von 5 Sternen